Haustypen Rufen Sie uns an
Haustyp teilen

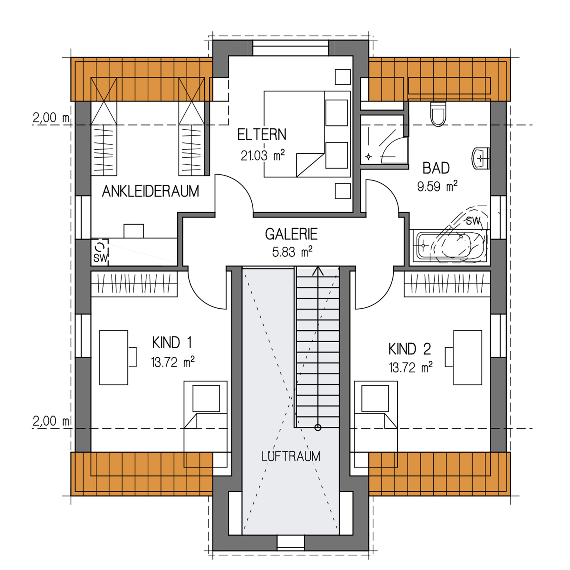
SATTELDACH FAVORIT 148

Wohnfläche: 148m² Zimmer: 5
RKR Haustyp | SATTELDACH FAVORIT 148 | Erdgeschoss RKR Haustyp | SATTELDACH FAVORIT 148 | Dachgeschoss
RKR Haustyp | SATTELDACH FAVORIT 148 | Ansicht
Bei RKR Systembau GmbH werden Ihre individuelle Wohnträume verwirklicht. Alle unsere Grundrisse sind lediglich nur Vorschläge - gern realisieren wir genau auf Sie abgestimmten Hausplan.

Hinterlassen Sie uns Ihren Namen und Telefonnummer

dann meldet sich bei Ihnen unverbindlich ein Berater, um Sie mit weiteren Informationen zu versorgen

Unsere Typen-Häuser werden schon im Standard mit einer gehobenen Ausstattung errichtet

Inklusivleistungen


  • Festpreis Garantie
  • Vertraglich garantierte Bauzeit
  • Bankbürgschaft
  • Individuelle Hausplanung
  • Architektur, Statik, Wärmeschutznachweis, Bauantrag
  • Kostenkontrolle bei der Hausplanung
  • Antragserstellung für KFW / BAFA Förderung
  • Bauüberwachung / Bauabnahme durch DEKRA mit Zertifikat
  • Luftdichtigkeitsnachweis / Blower Door Test durch DEKRA
  • Baustelleneinrichtung: Bauwasser, Baustrom, Baustellen-WC inkl. Verbrauchskosten bis Zählersetzen
  • Kanalanschluss inkl. Revisionsschacht
  • Bodenplatte inkl. Sauberkeitsschicht | Stahlbeton in 28 cm Stärke / Bungalow 20cm
  • Rohbauhöhe 2,75m
  • POROTON / BISOTHERM / PORIT als massives Außenmauerwerk (Stein auf Stein gemauert) 36,5 cm
  • Massive Innenwände im OG/DG (Stein auf Stein gemauert)
  • Massive Stahlbetondecken
  • Dachstuhl aus Konstruktionsvollholz (KVH / BSH)
  • CREATON Dacheindeckung mit engobierten Tonziegeln
  • PIRNAR Alu-Haustür mit über 20 verschiedenen Modellen zur Auswahl Erhöhte Einbruchhemmung nach RC2
  • KÖMMERLING 88MD Passivhaus- Fenster / Ug-Wert = 0,5 W/(m2K) Erhöhte Einbruchhemmung nach RC1N
  • LAKAL Alu- Rollläden im gesamten Haus inkl. Somfy Elektroantrieb
  • Massivholztreppe mit Edelstahlstäben
  • Granitfensterbänke innen und außen
  • MERTEN Schalterprogramm inkl. Elektroinstallation
  • DAIKIN Wärmepumpe
  • Fußbodenheizung im ganzen Haus mit Einzelraumregelung
  • Innenputz Q2 Ausführung
  • Betondeckenfugen gespachtelt (EG)
  • Außenputz (Grundputz, Oberputz) 3mm inkl. Gewebearmierung
  • Zementestrich inkl. Dämmung
  • Frostsicherer Außenwasserhahn
  • Handtuchheizkörper im Bad
  • Badfliesen Raumhoch oder nach Wunsch inkl. begehbare Dusche
  • Villeroy & Boch Boden- u. Wandfliesen im G-WC und Bad bis 25,00 €/m² (Format bis 60x60cm)
  • Villeroy & Boch Sanitärobjekte inkl. Hans Grohe Armaturen und wandhängendes WC
  • CPL- Innentüren

auf Wunsch:


  • Bauherrenhaftpflichtversicherung
  • Bauleistungsversicherung
  • Garage inkl. HÖRMANN Sektionaltor mit Elektroantrieb
  • Kamingestaltung durch Partner
  • WU Keller
  • Anthrazit Fenster einseitig
  • Anthrazit Fenster beidseitig
  • Hebe- Schiebe Elemente



Gerne berücksichtigen wir Ihre individuellen Wünsche und Vorstellungen, wie z. B. Grundrissänderungen und veränderte Ausstattungsdetails und werden diese im Bau gern umsetzen.

Immobilienprüfung -baubegleitend- DEKRA GEPRÜFT

diese Haustypen könnten ihnen auch gefallen

Satteldachhaus Rodenbach 163

Wohnfläche: 163m² Zimmer: 5

Satteldachhaus casa vivere felici 235

Wohnfläche: 235m² Zimmer: 5

SATTELDACH LUX 154

Wohnfläche: 154m² Zimmer: 5

SATTELDACH AKA 150

Wohnfläche: 150m² Zimmer: 5

Satteldachhaus Beckingen 231 mit Einliegerwohnung

Wohnfläche: 231m² Zimmer: 7

Satteldachhaus Völklingen 150

Wohnfläche: 150m² Zimmer: 5

Satteldachhaus Blieskastel 141

Wohnfläche: 141m² Zimmer: 5

SATTELDACH GALERIE 147

Wohnfläche: 147m² Zimmer: 5

Satteldachhaus Ottweiler 126

Wohnfläche: 126m² Zimmer: 4

SATTELDACH LILA 143

Wohnfläche: 143m² Zimmer: 5

SATTELDACH MUSE 171

Wohnfläche: 171m² Zimmer: 5

SATTELDACH FAVORIT 134

Wohnfläche: 134m² Zimmer: 4

SATTELDACH AMA 148

Wohnfläche: 148m² Zimmer: 5

SATTELDACH GALERIE 115

Wohnfläche: 115m² Zimmer: 4

SATTELDACH GALERIE 123

Wohnfläche: 123m² Zimmer: 4

RKR Komfort Haus - Studio

Wohnfläche: 185.23m² Zimmer: 7

RKR Komfort Haus - Studio mit Erweiterung Erdgeschoss

Wohnfläche: 195.17m² Zimmer: 7

SATTELDACH HARMONIE 117

Wohnfläche: 117m² Zimmer: 4

RKR Komfort Haus - Satteldach

Wohnfläche: 141.15m² Zimmer: 6

RKR Komfort Haus - Barnhaus

Wohnfläche: 132.31m² Zimmer: 5

Satteldachhaus Heusweiler 168

Wohnfläche: 168m² Zimmer: 5

SATTELDACH ELEGANZ 151

Wohnfläche: 151m² Zimmer: 5

RKR Komfort Haus - Satteldach mit Erweiterung Erdgeschoss

Wohnfläche: 151.09m² Zimmer: 6