Haustypen Rufen Sie uns an
Haustyp teilen

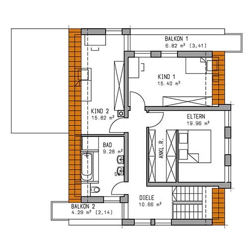
SATTEL PULTDACH ART 1 155

Wohnfläche: 155m² Zimmer: 4
RKR Haustyp | SATTEL PULTDACH ART 1 155 | Erdgeschoss RKR Haustyp | SATTEL PULTDACH ART 1 155 | Dachgeschoss
RKR Haustyp | SATTEL PULTDACH ART 1 155 | Ansicht
Bei RKR Systembau GmbH werden Ihre individuelle Wohnträume verwirklicht. Alle unsere Grundrisse sind lediglich nur Vorschläge - gern realisieren wir genau auf Sie abgestimmten Hausplan.

Hinterlassen Sie uns Ihren Namen und Telefonnummer

dann meldet sich bei Ihnen unverbindlich ein Berater, um Sie mit weiteren Informationen zu versorgen

Unsere Typen-Häuser werden schon im Standard mit einer gehobenen Ausstattung errichtet

Inklusivleistungen


  • Festpreis Garantie
  • Vertraglich garantierte Bauzeit
  • Bankbürgschaft
  • Individuelle Hausplanung
  • Architektur, Statik, Wärmeschutznachweis, Bauantrag
  • Kostenkontrolle bei der Hausplanung
  • Antragserstellung für KFW / BAFA Förderung
  • Bauüberwachung / Bauabnahme durch DEKRA mit Zertifikat
  • Luftdichtigkeitsnachweis / Blower Door Test durch DEKRA
  • Baustelleneinrichtung: Bauwasser, Baustrom, Baustellen-WC inkl. Verbrauchskosten bis Zählersetzen
  • Kanalanschluss inkl. Revisionsschacht
  • Bodenplatte inkl. Sauberkeitsschicht | Stahlbeton in 28 cm Stärke / Bungalow 20cm
  • Rohbauhöhe 2,75m
  • POROTON / BISOTHERM / PORIT als massives Außenmauerwerk (Stein auf Stein gemauert) 36,5 cm
  • Massive Innenwände im OG/DG (Stein auf Stein gemauert)
  • Massive Stahlbetondecken
  • Dachstuhl aus Konstruktionsvollholz (KVH / BSH)
  • CREATON Dacheindeckung mit engobierten Tonziegeln
  • PIRNAR Alu-Haustür mit über 20 verschiedenen Modellen zur Auswahl Erhöhte Einbruchhemmung nach RC2
  • KÖMMERLING 88MD Passivhaus- Fenster / Ug-Wert = 0,5 W/(m2K) Erhöhte Einbruchhemmung nach RC1N
  • LAKAL Alu- Rollläden im gesamten Haus inkl. Somfy Elektroantrieb
  • Massivholztreppe mit Edelstahlstäben
  • Granitfensterbänke innen und außen
  • MERTEN Schalterprogramm inkl. Elektroinstallation
  • DAIKIN Wärmepumpe
  • Fußbodenheizung im ganzen Haus mit Einzelraumregelung
  • Innenputz Q2 Ausführung
  • Betondeckenfugen gespachtelt (EG)
  • Außenputz (Grundputz, Oberputz) 3mm inkl. Gewebearmierung
  • Zementestrich inkl. Dämmung
  • Frostsicherer Außenwasserhahn
  • Handtuchheizkörper im Bad
  • Badfliesen Raumhoch oder nach Wunsch inkl. begehbare Dusche
  • Villeroy & Boch Boden- u. Wandfliesen im G-WC und Bad bis 25,00 €/m² (Format bis 60x60cm)
  • Villeroy & Boch Sanitärobjekte inkl. Hans Grohe Armaturen und wandhängendes WC
  • CPL- Innentüren

auf Wunsch:


  • Bauherrenhaftpflichtversicherung
  • Bauleistungsversicherung
  • Garage inkl. HÖRMANN Sektionaltor mit Elektroantrieb
  • Kamingestaltung durch Partner
  • WU Keller
  • Anthrazit Fenster einseitig
  • Anthrazit Fenster beidseitig
  • Hebe- Schiebe Elemente



Gerne berücksichtigen wir Ihre individuellen Wünsche und Vorstellungen, wie z. B. Grundrissänderungen und veränderte Ausstattungsdetails und werden diese im Bau gern umsetzen.

Immobilienprüfung -baubegleitend- DEKRA GEPRÜFT

diese Haustypen könnten ihnen auch gefallen